Lux Funk – kliendi soovist sündinud isikupärane paarismaja
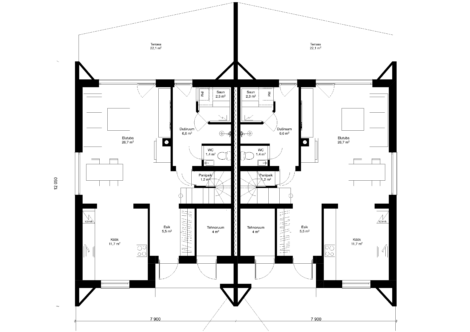
Iga kodu saab alguse ideest – seekord pöördus klient Jämerä poole sooviga luua kaasaegne ja hästi toimiv paarismaja. Uue kodu lähtepunktiks valiti Woodfunk tüüpprojekti läbimõeldud korruseplaanid. Välisilme osas langes valik elegantse Lux S tüüpprojekti stiilile, mis annab majale modernse ja stiilse ilme.

Uus projekt sai nimeks Lux Funk – see peegeldab ideaalselt kahe maailma kohtumist: funktsionaalse planeeringu ja elegantse välisilme. Tulemuseks on kodu, mis ühendab endas kvaliteedi, esteetika ja läbimõeldud ruumikasutuse – täpselt selline, nagu klient soovis. See projekt on hea näide sellest, kuidas tüüplahendust saab paindlikult kohandada, et luua midagi tõeliselt isikupärast.
Jämerä tugevuseks ongi paindlikkus – meie juures ei pea klient piirduma vaid ühe tüüpprojektiga. Erinevate majade parimaid lahendusi saab omavahel kombineerida, et luua just enda perele sobiv kodu. Olgu selleks ühe projekti korruseplaan, teise fassaadilahendus või kolmanda detailid – meie arhitektid aitavad need ideed siduda ühtseks tervikuks.
Selline lähenemine annab võimaluse luua kodu, mis ei ole lihtsalt standardlahendus, vaid peegeldab omaniku isiklikke soove, elustiili ja esteetikat. Lux Funk on suurepärane näide sellest, kuidas koostöös kliendiga sünnib ainulaadne ja läbimõeldud tulemus.


