Архитектор: Jaana Kraus
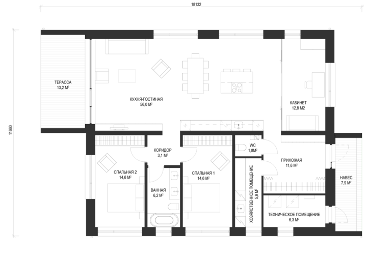
Jämerä Pööripäev– это проект одноэтажного частного дома, который идеально подходит для небольшой семьи. Внешняя отделка сочетает в себе светлую штукатурку и натуральное дерево, что придаёт дому одновременно элегантный и уютный вид, а темные поверхности создают интересный контраст между двумя частями дома. Планировка дома в общем характеризуется простотой и удобством, но особое внимание заслуживает просторная гостиная с открытой кухней. Величественность и простор этой комнате придает скатный потолок высотой до четырех метров и окно от пола до потолка, выходящее на террасу. Из гостиной можно попасть в кабинет, который отделен раздвижными стеклянными дверями, экономящими пространство и пропускающими свет. Ниши на торцевых частях дома образуют удобное крытое крыльцо у входа и приватную террасу в задней части дома, защищенную от осадков и солнца. Проект также предусматривает возможность расширения здания с целью увеличения комнат или создания отдельной комнаты из кабинета.










